Добро пожаловать на http://vipplan.ru

Випплан Коломна - это тысячи проектов домов в нашем каталоге!

Вы всегда сможете найти для себя проект дома вашей мечты! Даже если этого не случилось, мы готовы в любую минуту предложить проект индивидуального дома.

Забыли пароль?
Вы еще не регистрировались?

Перейдите по ссылке ниже на страницу регистрации.

Регистрация...

Внимание!!!

В проектную документацию могут быть внесены изменения любой сложности, в соответствии в Вашими пожеланиями!

Полезные статьи

Виды бассейнов

В наше время, строительство бассейна на территории своего участка, не такая уж и роскошь. Выбор видов и стилей бассейна, на сегодняшний день, очень большой....

Применение ленточных фундаментов

Большинство людей никогда не сталкивались с выбором фундамента, а, столкнувшись, не могут определиться с выбором. Ведущие специалисты в области строительства утверждают, что лучшим типом фундамент - ленточный фундамент. Как показывает статистика, ленточный фундамент очень популярен среди жителей нашей страны. ...

Проекты домов и коттеджей > Каталог проектов домов > Двухэтажный жилой дом с гаражом и террасами Vg3230

Двухэтажный жилой дом с гаражом и террасами Vg3230

Двухэтажный жилой дом с гаражом и террасами
Зарегистрируйтесь

Проект № Vg3230


Техническое описание
Общая площадь: 151.54 м2
Жилая площадь: 64 м2
Высота здания: 7.25 м
Размеры дома: 10.34м×14.69м
Кол-во комнат: 5
Цокольный этаж: нет
Гараж: нет
Мансарда: нет

Kонструкция
Фундамент: ленточный
Перекрытия: сборные плиты
Материал стен: Кирпич

Архитектурный раздел
Конструктивный раздел
АР+КР - 56 000 (Со скидкой 20%)
Двухэтажный жилой дом с гаражом и террасами с размерами здания 10,34 х 14,69 м. Наружная отделка здания – облицовочный кирпич. Фундамент – ленточный из блоков ФБС. Наружные стены – пустотелый кирпич. Внутренние стены – пустотелый кирпич. Перегородки – пустотелый кирпич. Пол гаража и бойлерной - пол по грунту. Пол 1 этажа, межэтажное перекрытие и перекрытие плоской кровли - сборные плиты перекрытия. Крыша плоская. Окна — металлопластиковые. Лестница — монолитная ж/б.
Генплан застройки участка / Паспорт проекта 7000 руб / 10000 руб
Инженерный раздел (полный) 76000 руб
Смета на строительство 38000 руб
Теплотехнический расчет материалов стен Бесплатно
Стоимость проекта со незначительнми изменениями 66200 руб
Стоимость проекта со средними изменениями* 77600 руб
Стоимость проекта со значительными изменениями** 80600 руб

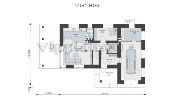
План первого этажа


Тамбур - 5,29 м2
Гараж - 23,56 м2
Бойлерная - 7,88 м2
С/у - 2,88 м2
Кабинет - 8,90 м2
Кладовая - 2,16 м2
Кухня - 10,09 м2
Гостиная - 20,57 м2
Холл - 2,50 м2

Двухэтажный жилой дом с гаражом и террасами

Двухэтажный жилой дом с гаражом и террасами

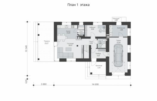
План второго этажа


Холл - 5,78 м2
Спальня - 11,11 м2
Спальня - 11,30 м2
С/у - 6,10 м2
Гардероб - 4,39 м2
Спальня - 12,91 м2
Терраса - 16,12 м2
Двухэтажный жилой дом с гаражом и террасами Двухэтажный жилой дом с гаражом и террасами Двухэтажный жилой дом с гаражом и террасами Двухэтажный жилой дом с гаражом и террасами

Модификации проектов

Внесение изменений и привязка к участку строительства

В любой из проектов от компании VIPplan - Коломна по вашему желанию могут быть внесены изменения в материалы стен, материалы наружной отделки дома, а также будет произведена адаптация проекта под конкретный регион строительства (с учетом грунтов региона, геологических особенностей вашего участка и местных климатических условий) - БЕСПЛАТНО !!! (кроме проектов со скидкой и проектов наших партнеров).

Любой из проектов, размещенных на сайте kolomna.vipplan.ru мы можем выполнить из требуемых вам строительных материалов: ячеистый бетон (газобетон, пеноблок), керамоблок, кирпич, шлакоблок, бетонный блок, дерево (брус, клееный брус), каркасная технология (деревянный каркас, металлокаркас (ЛСТК)).

Фасад дома и его наружную отделку так же возможно выполнить с применением различных облицовочных материалов: структурной штукатурки, (с утеплителем и без), сайдингом (пластиковый или металлосайдинг), фиброплитами, кирпича.

 
6 Избранные
проекты

Доставка проектов по России: Москва (Московская область), Санкт-Петербург (Ленинградская область), Краснодар, Ростов-на-Дону, Ставрополь, Сочи, Волгоград, Новосибирск, Белгород, Брянск, Воронеж, Саратов, Хабаровск, Астрахань, Нальчик, Владикавказ, Екатеринбург, Тюмень, Самара, Нижний Новгород, Казань, Пермь, Уфа, Челябинск, Красноярск, Ханты-Мансийск, Иркутск, Курган, Оренбург, Омск, Томск, Барнаул, Новокузнецк, Кемерово, Абакан, Чита, Якутск, Южно-Сахалинск, Петропавловск-Камчатский и страны ближнего зарубежья: Белоруссия, Украина, Казахстан