Добро пожаловать на http://vipplan.ru

Випплан Коломна - это тысячи проектов домов в нашем каталоге!

Вы всегда сможете найти для себя проект дома вашей мечты! Даже если этого не случилось, мы готовы в любую минуту предложить проект индивидуального дома.

Забыли пароль?
Вы еще не регистрировались?

Перейдите по ссылке ниже на страницу регистрации.

Регистрация...

Внимание!!!

В проектную документацию могут быть внесены изменения любой сложности, в соответствии в Вашими пожеланиями!

Полезные статьи

Фундамент под гараж

Обычно фундаменты под гараж делаются из бетонного раствора и заливаются, как монолит. Гаражные фундаменты так же можно укладывать из бетона с применением бутового камня. Такие фундаменты тоже считаются монолитными. В этом случае происходит экономия бетона....

Мероприятия по получению разрешения на строительство в Коломне

Хотите построить дом в Коломне? Не знаете с чего начать? Для начала, нужно заказать проект, а после получить разрешение на строительство. ...

Проекты домов и коттеджей > Каталог проектов домов > Проект просторного двухэтажного дома Vg2273

Проект просторного двухэтажного дома Vg2273

Проект просторного двухэтажного дома
Зарегистрируйтесь

Проект № Vg2273


Техническое описание
Общая площадь: 188.63 м2
Жилая площадь: 91.99 м2
Высота здания: 9.41 м
Размеры дома: 14.7м×13.27м
Кол-во комнат: 6
Цокольный этаж: нет
Гараж: нет
Мансарда: нет

Kонструкция
Фундамент: ленточный монолитный
Перекрытия: монолитная ж/б плита
Материал стен: Каркас

Архитектурный раздел
Конструктивный раздел
АР+КР - 60 000 (Со скидкой 20%)
Проект индивидуального двухэтажного жилого дома с размерами здания 14,70 x 13,27 м. Наружная отделка здания –панели с клинкерной плиткой. Фундамент –ленточный монолитный. Наружные стены - монолитный каркас с заполнением наливным пенобетоном, с отделкой панелями с клинкерной плиткой. Внутренние стены - наливной пенобетон. Перегородки – пенобетонные блоки. Пол первого этажа -монолитное перекрытие. Межэтажное перекрытие - монолитная ж/б плита. Крыша многоскатная. Кровля – металлочерепица. Окна — металлопластиковые
Генплан застройки участка / Паспорт проекта 7000 руб / 10000 руб
Инженерный раздел (полный) 94500 руб
Смета на строительство 47250 руб
Теплотехнический расчет материалов стен Бесплатно
Стоимость проекта со незначительнми изменениями 70250 руб
Стоимость проекта со средними изменениями* 84500 руб
Стоимость проекта со значительными изменениями** 88200 руб

План первого этажа


Прихожая — 5,09 кв м
Кухня — 10,38 кв м
Гостиная — 33,29 кв м
Холл — 9,97 кв м
С/у — 4,41 кв м
Спальня — 11,76 кв м
Гараж — 37,34 кв м

Проект просторного двухэтажного дома

Проект просторного двухэтажного дома

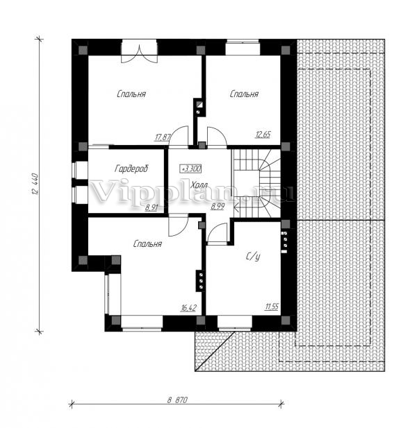
План второго этажа


Холл — 8,99 кв м
С/у — 11,55 кв м
Спальня — 16,42 кв м
Спальня — 17,87 кв м
Гардероб — 8,91 кв м
Спальня — 12,65 кв м
Проект просторного двухэтажного дома Проект просторного двухэтажного дома Проект просторного двухэтажного дома Проект просторного двухэтажного дома

Модификации проектов

Внесение изменений и привязка к участку строительства

В любой из проектов от компании VIPplan - Коломна по вашему желанию могут быть внесены изменения в материалы стен, материалы наружной отделки дома, а также будет произведена адаптация проекта под конкретный регион строительства (с учетом грунтов региона, геологических особенностей вашего участка и местных климатических условий) - БЕСПЛАТНО !!! (кроме проектов со скидкой и проектов наших партнеров).

Любой из проектов, размещенных на сайте kolomna.vipplan.ru мы можем выполнить из требуемых вам строительных материалов: ячеистый бетон (газобетон, пеноблок), керамоблок, кирпич, шлакоблок, бетонный блок, дерево (брус, клееный брус), каркасная технология (деревянный каркас, металлокаркас (ЛСТК)).

Фасад дома и его наружную отделку так же возможно выполнить с применением различных облицовочных материалов: структурной штукатурки, (с утеплителем и без), сайдингом (пластиковый или металлосайдинг), фиброплитами, кирпича.

 
6 Избранные
проекты

Доставка проектов по России: Москва (Московская область), Санкт-Петербург (Ленинградская область), Краснодар, Ростов-на-Дону, Ставрополь, Сочи, Волгоград, Новосибирск, Белгород, Брянск, Воронеж, Саратов, Хабаровск, Астрахань, Нальчик, Владикавказ, Екатеринбург, Тюмень, Самара, Нижний Новгород, Казань, Пермь, Уфа, Челябинск, Красноярск, Ханты-Мансийск, Иркутск, Курган, Оренбург, Омск, Томск, Барнаул, Новокузнецк, Кемерово, Абакан, Чита, Якутск, Южно-Сахалинск, Петропавловск-Камчатский и страны ближнего зарубежья: Белоруссия, Украина, Казахстан