Добро пожаловать на http://vipplan.ru

Випплан Коломна - это тысячи проектов домов в нашем каталоге!

Вы всегда сможете найти для себя проект дома вашей мечты! Даже если этого не случилось, мы готовы в любую минуту предложить проект индивидуального дома.

Забыли пароль?
Вы еще не регистрировались?

Перейдите по ссылке ниже на страницу регистрации.

Регистрация...

Внимание!!!

В проектную документацию могут быть внесены изменения любой сложности, в соответствии в Вашими пожеланиями!

Полезные статьи

Выбор бригады строителей в Коломне

Перед началом строительства дома перед будущим хозяином загородной недвижимости в Московской области обозначится несколько вариантов: обратиться в строительную компанию, специализирующуюся на малоэтажном коттеджном строительстве, воспользоваться услугами частной бригады; строить самому "своими руками"....

Как сделать мансардную крышу

Мансарда - обеспечивает дополнительную жилую площадь одно- или двухуровневой постройке за счет подкровельного пространства и, благодаря видимым элементам конструкции крыши, выполняет немаловажную эстетическую функцию. Дома с мансардой достаточно распространены в Московской области благодаря своей привлекательности и неповторимости. ...

Проекты домов и коттеджей > Каталог проектов домов > Проект одноэтажного коттеджа с гаражом Vg1469

Проект одноэтажного коттеджа с гаражом Vg1469

Проект одноэтажного коттеджа с гаражом
Зарегистрируйтесь

Проект № Vg1469


Техническое описание
Общая площадь: 128.29 м2
Высота здания: 6.66 м
Размеры дома: 9.48м×19.28м
Цокольный этаж: нет
Гараж: нет
Мансарда: нет

Kонструкция
Фундамент: Стена в грунте
Перекрытия: Деревянные
Материал стен: Газобетон

Архитектурный раздел
Конструктивный раздел
АР+КР - 52 000 (Со скидкой 20%)
Проект индивидуального одноэтажного одноквартирного жилого дома с размерами 9,48 x 19,28 м. Наружная отделка здания – облицовочный кирпич. Цоколь – клинкерная плитка. Фундамент – стена в грунте (щелевой). Наружные стены запроектированы из: пенобетонных блоков и облицовочного кирпича. Внутренние стены и перегородки - из пенобетонных блоков. Перемычки - монолитные и сварные из профиля проката. Перекрытие чердачное – по деревянным балкам с заполнением утеплителем в межбалочном пространстве. Пол этажа – пол по грунту. Крыша - многоскатная. Материал кровли – профнастил. Окна - металлопластиковые, выполненные по индивидуальному заказу. Лестница выполняется по индивидуальному заказу.
Генплан застройки участка / Паспорт проекта 7000 руб / 10000 руб
Инженерный раздел (полный) 64000 руб
Смета на строительство 32000 руб
Теплотехнический расчет материалов стен Бесплатно
Стоимость проекта со незначительнми изменениями 61800 руб
Стоимость проекта со средними изменениями* 71400 руб
Стоимость проекта со значительными изменениями** 74000 руб

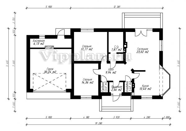
План первого этажа


Гараж - 30,24 м2
Бойлерная - 6,73 м2
Спальня - 14,36 м2
Спальня - 17,77 м2
С/у - 7,87 м2
Холл - 9,94 м2
Кладовая - 1,40 м2
Прихожая - 2,66 м2
Гардероб - 1,40 м2
Кухня - 13,40 м2
Гостиная - 23,02 м2
Проект одноэтажного коттеджа с гаражом Проект одноэтажного коттеджа с гаражом Проект одноэтажного коттеджа с гаражом Проект одноэтажного коттеджа с гаражом

Модификации проектов

Внесение изменений и привязка к участку строительства

В любой из проектов от компании VIPplan - Коломна по вашему желанию могут быть внесены изменения в материалы стен, материалы наружной отделки дома, а также будет произведена адаптация проекта под конкретный регион строительства (с учетом грунтов региона, геологических особенностей вашего участка и местных климатических условий) - БЕСПЛАТНО !!! (кроме проектов со скидкой и проектов наших партнеров).

Любой из проектов, размещенных на сайте kolomna.vipplan.ru мы можем выполнить из требуемых вам строительных материалов: ячеистый бетон (газобетон, пеноблок), керамоблок, кирпич, шлакоблок, бетонный блок, дерево (брус, клееный брус), каркасная технология (деревянный каркас, металлокаркас (ЛСТК)).

Фасад дома и его наружную отделку так же возможно выполнить с применением различных облицовочных материалов: структурной штукатурки, (с утеплителем и без), сайдингом (пластиковый или металлосайдинг), фиброплитами, кирпича.

 
6 Избранные
проекты

Доставка проектов по России: Москва (Московская область), Санкт-Петербург (Ленинградская область), Краснодар, Ростов-на-Дону, Ставрополь, Сочи, Волгоград, Новосибирск, Белгород, Брянск, Воронеж, Саратов, Хабаровск, Астрахань, Нальчик, Владикавказ, Екатеринбург, Тюмень, Самара, Нижний Новгород, Казань, Пермь, Уфа, Челябинск, Красноярск, Ханты-Мансийск, Иркутск, Курган, Оренбург, Омск, Томск, Барнаул, Новокузнецк, Кемерово, Абакан, Чита, Якутск, Южно-Сахалинск, Петропавловск-Камчатский и страны ближнего зарубежья: Белоруссия, Украина, Казахстан