Добро пожаловать на http://vipplan.ru

Випплан Коломна - это тысячи проектов домов в нашем каталоге!

Вы всегда сможете найти для себя проект дома вашей мечты! Даже если этого не случилось, мы готовы в любую минуту предложить проект индивидуального дома.

Забыли пароль?
Вы еще не регистрировались?

Перейдите по ссылке ниже на страницу регистрации.

Регистрация...

Внимание!!!

В проектную документацию могут быть внесены изменения любой сложности, в соответствии в Вашими пожеланиями!

Полезные статьи

Применение свайных фундаментов

Сваи представляют собой длинные стержни, погруженные глубоко в грунт или изготовленные непосредственно в грунте. Покупные сваи с одной стороны имеют заостренный конец, который забивается в почву с помощью специальной техники. Установка свай, изготовленных своими руками, предполагают бурение скважин, армирование и заливку бетонного раствора. ...

Газобетонные перекрытия

Перекрытия из газобетонных плит, устанавливаются без применения подъемников и кранов. Строители устанавливают прочные и, что немаловажно, легкие газоблоки без помощи техники. Ячеистый бетон (пенобетон и газобетон) нашел широкое применение в домах из пенобетона и газобетона в Коломне...

Проекты домов и коттеджей > Каталог проектов домов > Современный загородный коттедж Vg1018

Современный загородный коттедж Vg1018

Современный загородный коттедж
Зарегистрируйтесь

Проект № Vg1018


Техническое описание
Общая площадь: 188.6 м2
Жилая площадь: 103.73 м2
Высота здания: 8.82 м
Размеры дома: 11.04м×12.54м
Кол-во комнат: 7
Цокольный этаж: нет
Гараж: нет
Мансарда: есть

Kонструкция
Фундамент: Монолитная ж/б плита
Перекрытия: Сборные ж/б плиты
Материал стен: Газобетон

Архитектурный раздел
Конструктивный раздел
Инженерный раздел
Смета на строительство
АР+КР - 60 000 (Со скидкой 20%)
АР+КР+ИР - 126 150 (Со скидкой 50%)
Проект индивидуального одноэтажного жилого дома с мансардой размерами здания 12,04 x 12,54 м. Наружная отделка здания – сайдинг под штукатурку. Фундамент – монолитная ж/б плита под всей площадью дома. Наружные стены — газобетонные блоки, минеральная вата, сайдинг под штукатурку. Внутренние стены - газобетонные блоки. Перегородки – забутовочный кирпич. Пол первого этажа - пол по монолитной плите. Межэтажное перекрытие — сборные ж/б плиты перекрытия. Крыша многоскатная. Кровля – металлочерепица. Окна - металлопластиковые, выполненные по индивидуальному заказу.
Генплан застройки участка / Паспорт проекта 7000 руб / 10000 руб
Инженерный раздел (полный) 66150 руб (94500 руб)
Смета на строительство 35438 руб (47250 руб)
Теплотехнический расчет материалов стен Бесплатно
Стоимость проекта со незначительнми изменениями 70250 руб
Стоимость проекта со средними изменениями* 84500 руб
Стоимость проекта со значительными изменениями** 88200 руб

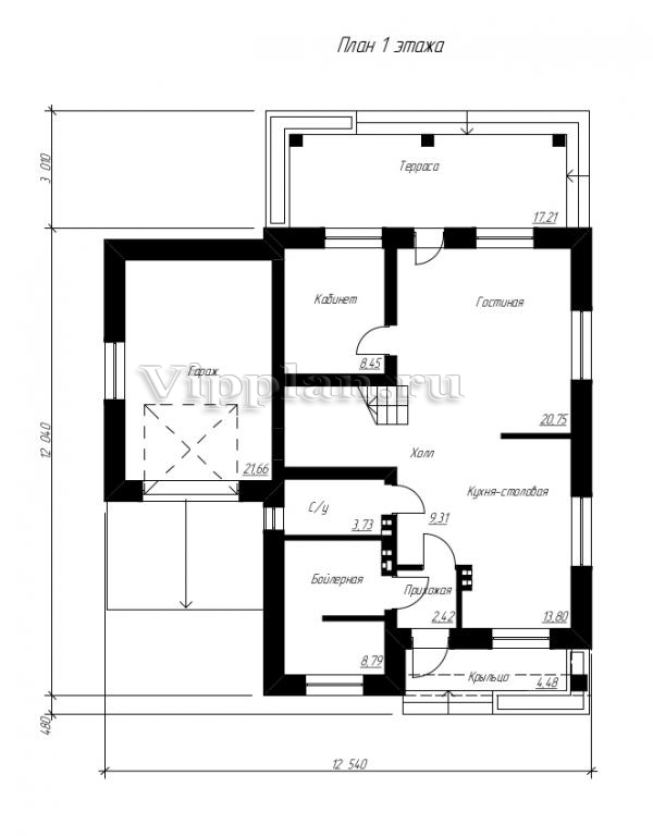
План первого этажа


Прихожая - 2,42 м2
Кухня - 13,80 м2
Холл - 9,31 м2
Гостиная - 20,75 м2
Кабинет - 8,45 м2
С/у - 3,73 м2
Бойлерная - 8,79 м2
Гараж - 21,66 м2

План мансардного этажа


Холл - 8,87 м2
Спальня - 21,66 м2
Спальня - 15,26 м2
Спальня - 12,88 м2
Гардероб - 4,19 м2
Спальня - 13,22 м2
Спальня - 11,51 м2
Современный загородный коттедж Современный загородный коттедж Современный загородный коттедж Современный загородный коттедж

Модификации проектов

Внесение изменений и привязка к участку строительства

В любой из проектов от компании VIPplan - Коломна по вашему желанию могут быть внесены изменения в материалы стен, материалы наружной отделки дома, а также будет произведена адаптация проекта под конкретный регион строительства (с учетом грунтов региона, геологических особенностей вашего участка и местных климатических условий) - БЕСПЛАТНО !!! (кроме проектов со скидкой и проектов наших партнеров).

Любой из проектов, размещенных на сайте kolomna.vipplan.ru мы можем выполнить из требуемых вам строительных материалов: ячеистый бетон (газобетон, пеноблок), керамоблок, кирпич, шлакоблок, бетонный блок, дерево (брус, клееный брус), каркасная технология (деревянный каркас, металлокаркас (ЛСТК)).

Фасад дома и его наружную отделку так же возможно выполнить с применением различных облицовочных материалов: структурной штукатурки, (с утеплителем и без), сайдингом (пластиковый или металлосайдинг), фиброплитами, кирпича.

 
6 Избранные
проекты

Доставка проектов по России: Москва (Московская область), Санкт-Петербург (Ленинградская область), Краснодар, Ростов-на-Дону, Ставрополь, Сочи, Волгоград, Новосибирск, Белгород, Брянск, Воронеж, Саратов, Хабаровск, Астрахань, Нальчик, Владикавказ, Екатеринбург, Тюмень, Самара, Нижний Новгород, Казань, Пермь, Уфа, Челябинск, Красноярск, Ханты-Мансийск, Иркутск, Курган, Оренбург, Омск, Томск, Барнаул, Новокузнецк, Кемерово, Абакан, Чита, Якутск, Южно-Сахалинск, Петропавловск-Камчатский и страны ближнего зарубежья: Белоруссия, Украина, Казахстан